4 Loại giá góc tủ bếp hiện đại, tối ưu công năng kèm báo giá chi tiết
Khi thiết kế tủ bếp, nhiều người thường bỏ qua khu vực góc tủ bếp, trong khi đây lại là nơi có tiềm năng lưu trữ lớn nhưng khó khai thác nếu không biết cách bố trí hợp lý. Với sự phát triển của phụ kiện thông minh, các loại giá góc tủ bếp ngày nay đã giúp khắc phục hoàn toàn nhược điểm này, biến góc chết thành không gian sử dụng tiện nghi và khoa học.
>> Xem ngay:
- 3 loại giá đựng bát đĩa tủ bếp
- Giá nâng hạ cho tủ bếp
- Tủ bếp giả gỗ đẹp
- 3 loại Giá góc xoay tủ bếp
- 4 Giá góc tủ bếp đẹp
1. Góc tủ bếp là gì?
Góc tủ bếp là phần giao nhau giữa hai cạnh của hệ tủ thường xuất hiện ở các kiểu bố trí tủ chữ L hoặc chữ U. Đây là khu vực vừa khó tiếp cận, vừa khó bố trí kệ hoặc ngăn kéo thông thường. Nếu không được xử lý đúng cách, góc tủ bếp sẽ trở thành “góc chết” vừa lãng phí không gian, vừa gây bất tiện khi sử dụng. Vì vậy, việc trang bị giá góc tủ bếp là giải pháp hoàn hảo để tận dụng tối đa diện tích này.
2. Giá góc tủ bếp là gì?
Giá góc tủ bếp là phụ kiện cơ khí gắn trong phần góc khuất của tủ, cho phép người dùng kéo ra – đẩy vào linh hoạt, giúp lấy đồ ở sâu trong góc dễ dàng mà không cần cúi người hoặc thò tay sâu vào bên trong.
Hiện nay, các hãng phụ kiện như Blum, Garis, Eurogold, Hafele… đều có nhiều dòng giá góc tủ bếp thông minh phù hợp mọi kiểu tủ và nhu cầu sử dụng khác nhau.
3. Phân loại các loại giá góc tủ bếp phổ biến
3.1. Giá góc liên hoàn (Magic Corner)


Đây là dòng cao cấp và tiện dụng nhất hiện nay. Khi mở cánh tủ, toàn bộ hệ khay sẽ tự động trượt ra ngoài, mang theo cả phần trong góc.
- Ưu điểm: tận dụng triệt để không gian, thao tác nhẹ nhàng.
- Nhược điểm: giá thành cao (khoảng 5–8 triệu đồng/bộ).
3.2. Giá góc mâm xoay 180° hoặc 270°

Dạng mâm xoay tròn nhiều tầng, thường làm bằng inox hoặc hợp kim nhôm. Người dùng chỉ cần xoay là lấy được đồ bên trong.
- Ưu điểm: thiết kế đơn giản, tiết kiệm chi phí, dễ lắp đặt.
- Nhược điểm: diện tích chứa không lớn, chỉ phù hợp bếp nhỏ.
3.3. Giá góc tủ bếp hình lá

Khi kéo ra, khay inox hình lá trượt nhẹ ra ngoài. Kiểu này đang rất được ưa chuộng trong tủ bếp hiện đại.
- Ưu điểm: thao tác nhẹ, gọn gàng, thẩm mỹ cao.
- Nhược điểm: chỉ dùng cho tủ góc có cánh mở.
3.4. Giá góc dưới dạng khay trượt tầng

Gồm nhiều tầng trượt song song, tận dụng không gian góc dưới.
- Ưu điểm: dễ bố trí nồi niêu, xoong chảo, vật dụng lớn.
- Nhược điểm: yêu cầu kích thước tủ chính xác khi lắp đặt.
4. Ưu điểm khi sử dụng giá góc tủ bếp
- Tận dụng tối đa không gian góc khuất, vốn thường bị bỏ trống.
- Tăng diện tích lưu trữ, giúp căn bếp gọn gàng hơn.
- Thao tác thuận tiện, không cần cúi người hay với sâu.
- Nâng cao tính thẩm mỹ, mang lại cảm giác hiện đại, cao cấp.
- Phù hợp với mọi kiểu tủ bếp: chữ L, chữ U, song song…
5. Cấu tạo của giá góc tủ bếp
Một bộ giá góc tủ bếp đạt chuẩn gồm các phần:
- Khung cố định: gắn chặt vào thùng tủ, làm bằng inox 304 hoặc thép sơn tĩnh điện.
- Khay chứa: có thể bằng inox, hợp kim hoặc nhựa ABS cao cấp, thường chia 2–4 tầng.
- Cơ cấu chuyển động: ray trượt hoặc bản lề liên hoàn, giúp giá di chuyển êm và ổn định.
- Cửa tủ liên kết: cánh tủ gắn trực tiếp với hệ ray để chuyển động đồng bộ khi kéo ra.
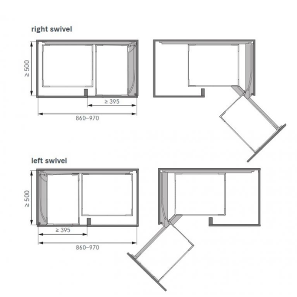
6. Kích thước tiêu chuẩn góc tủ bếp
Khi thiết kế, cần đảm bảo kích thước chuẩn để lắp vừa giá góc tủ bếp:
- Chiều rộng tối thiểu hộc tủ: 800–900mm.
- Chiều sâu: 500–600mm.
- Chiều cao tủ góc: 700–800mm (tính cả chân tủ).
- Cửa mở: 400–450mm là kích thước tối ưu cho hầu hết giá góc liên hoàn.
Việc thi công chính xác kích thước này giúp phụ kiện vận hành êm ái, không bị kẹt hoặc va chạm.
7. Cách lựa chọn giá góc tủ bếp phù hợp
- Xác định kiểu tủ và diện tích bếp:
- Bếp nhỏ: chọn mâm xoay hoặc bán nguyệt.
- Bếp lớn: chọn giá góc liên hoàn để tận dụng tối đa.
- Chọn chất liệu phù hợp môi trường:
- Nên chọn inox 304 hoặc thép sơn tĩnh điện chống gỉ.
- Chọn thương hiệu uy tín:
- Blum (Áo), Hafele (Đức), Garis, Eurogold (Việt Nam) là lựa chọn phổ biến.
- Ưu tiên chuyển động êm:
- Nên dùng ray trượt có giảm chấn, tránh tiếng ồn khi đóng mở.
8. Báo giá tham khảo giá góc tủ bếp hiện nay
| Loại giá góc tủ bếp | Mức giá trung bình (VNĐ) | Chất liệu phổ biến |
|---|---|---|
| Mâm xoay 180° / 270° | 1.500.000 – 3.000.000 | Inox 304 |
| Giá góc liên hoàn | 5.000.000 – 8.000.000 | Inox + ray trượt giảm chấn |
| Giá bán nguyệt | 2.500.000 – 4.000.000 | Inox hoặc hợp kim nhôm |
| Giá trượt tầng | 3.000.000 – 6.000.000 | Inox 304, sơn tĩnh điện |
(Lưu ý: Giá có thể thay đổi tùy kích thước, thương hiệu và phụ kiện đi kèm.)
9. ACADO Chuyên thiết kế, thi công tủ bếp và phụ kiện góc tủ thông minh
Với hơn 10 năm kinh nghiệm trong ngành nội thất bếp, ACADO tự hào là đơn vị tiên phong trong việc ứng dụng giá góc tủ bếp thông minh vào các thiết kế hiện đại.
Khi lựa chọn ACADO, bạn sẽ nhận được:
- Tư vấn thiết kế góc tủ bếp tối ưu theo diện tích thực tế.
- Sử dụng phụ kiện chính hãng Blum, Garis, Eurogold.
- Lắp đặt đúng kỹ thuật, đảm bảo vận hành êm và bền.
- Bảo hành phụ kiện dài hạn, bảo trì định kỳ miễn phí.
Chúng tôi luôn quan niệm: một góc bếp nhỏ cũng cần được khai thác thông minh và tinh tế nhất. Liên hệ ngay để được tư vấn thiết kế và báo giá chi tiết.
